CRD-0501-350

¥111,100 (税込)

  • 「R加工」詳細

    壁面収納の背面側の角にR50の丸みを付けることで、天井から-30mmの高さでも設置できるようにする加工です。
    ぎりぎりの高さまで収納にしたいお客様にオススメです。
    (R加工なしの場合、天井から-50mm以上の余白が必要です。)
     
    料金:壁面収納OSAMARU1台につき3,300円(税込)

  • 「両面化粧仕上げ」詳細

    壁側にくる切断面にも化粧板を貼り、表裏両面とも美しく見えるように仕上げるオプションです。
    OSAMARUをパーテーション代わりに使用するなど、両面とも人目に付く場合にオススメです。
     
    料金:壁面収納OSAMARU1台につき本体価格+15%
     
    ※本加工を施しますと、巾木よけ加工をせずにお送りいたします。巾木よけ加工をご希望の方は、注文メモよりお知らせください。
    ※見た目が綺麗になる以外の効果はありません。

  • 「転倒防止アジャスター」詳細

    壁面収納の左右に取付け、天井に突っ張ることで転倒を防止するアジャスターです。
    使用する工具はプラスドライバー1本のみで、付属のネジで止めてジャッキを回すだけで簡単に設置できます。
    カラーは黒と白の2種類です。

正常に取り付けるには、家具本体と天井の間に75〜85mmの隙間が必要です。

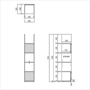
品 番 CRD-0501-350
サイズ W355×H1720×D350
表面材 本体:シナランバー・木口シナテープ貼り(無塗装)
開口有効寸法 縦・横1マス:W325×H325×D348

背板部分:D318 可動棚:D348 地板:D338

梱包サイズ 1740×380×120(1梱包)
付属品 六角レンチ・側板ジョイント金物(JCB)GB・ダボ棚受・転倒防止用金具

奥行き350mmのベーシックな壁面収納本棚です。リビングや廊下など、家の中のあらゆるところに溶け込んで、見せる収納スペースが実現できます。
コマ1つの大きさは、325mm×325mmです。よくあるA4サイズはタテが297mmなので、A4サイズの本や書類がゆとりを持って入ります。漫画や文庫本だけでなく、大型本やレコード、フィギュア、スピーカーや写真立てなど、様々な物が収納できるので使い勝手抜群です。

また、OSAMARUは、
・強度と耐久性を向上させる「背板」
・5段階の高さに調整できる「可動棚」
・取り外し可能でお掃除も簡単に出来る「底板」
・壁にピッタリ設置できる「巾木よけ加工」
と言った、嬉しい機能が標準装備されています。
そのため「大容量」で「使いやすい」壁面収納としてご支持をいただいています。